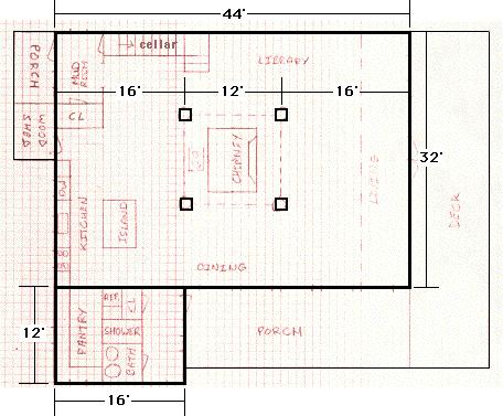
pictures | eastern elavation | northern elevation | first floor | second floor | foundation detail | chimney plan
email Lori & Cole
One square equals one foot (if you can see them!).


First Floor